产品快速通道
当前栏目名
您当前的位置:boyu·博鱼最新买球网 > 产品中心 > 鼓风机展厅压送

- 产品参数:
- 产品型号: null
- 额定功率:null
- 电压:null
- 风量:null
- 风压:null
- 转速/极数:null
- 安装方式:null
详细参数
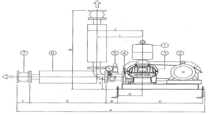
1、鲁式鼓风机压送—压送型叶轮采用最先进之四轴加工一次加工法,以减少认为误差,提升叶轮之精密度,并提高鼓风机之效率。
2、免润滑油无故障:在转子与转子间,及转子与壳体间,设有适当间隙,在运转中互不接触,内部不需润滑处理、机械部分之接触,采正时齿轮齿合模式、且壳体(转子动作室)以侧盖汽油分离,不致有润滑油混入之虞,故吐出只气体为不含油成分之清净空气,即使在长期运转情况下,亦可安心使用。
3、高度标准化之组件、品质保证,所有零件均经CNC自动化工作母机加工,规格均一致化,即使因不当使用所导致之损害,亦能轻而易举的更换新旧零件,节省维修时间、与工时费用、零件特价供应不虞维护之困扰、训练有素之外勤服务人员,让客户得到最佳之售后服务。
4、鲁式鼓风机压送—压送型低噪音、低震动:在噪音及振动之防治方面,本公司经多年加以研究,此一系列新机种乃采高精密度转子结构,以遂行理想之逆流压缩功能。
5、鲁式鼓风机压送—压送型鼓风机吐出空气之脉动,可更平滑的进行,噪音及振动均可大幅度减低,因此,就小型鼓风机而言,可免加装出口消音器
1
2、由气动马达驱动,用气压调整吐出速度。(可安装调压阀)
3、中——高粘度时,需安装加强吸盘。
4、式样
吐出量:75ml/行程
接液部材质:不锈钢、特氟隆
泵压力比:13:1或32:1
气源:0.5Mpa
粘度500000mpa.s以下(经试验确认)。
不适应于高粘度树脂及非流动性介质。






粤ICP备11012611号
